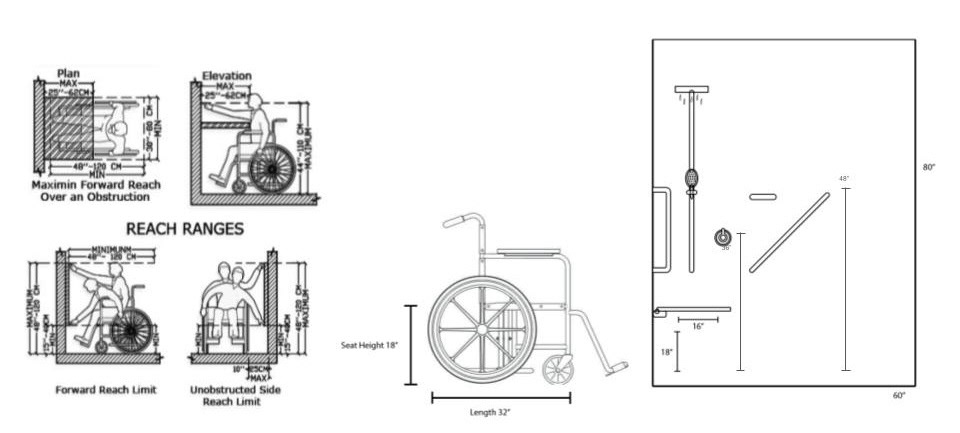
The goal of this design was to reduce the effort and risk of injury for users with mobility impediments or disabilities when bathing. Creating a flexible arm to hold the shower head in a desired position while remaining easily accessible. 
Aiming to minimize the need to reach, lean or leave the seated position, which are the most dangerous periods that can lead to serious injury. This device allows the user to be hands free and reduce the need for bodily exertion while also giving a wider range of positioning for the shower head.
 Improving safety and convenience in the experience.



Ideation
In exploring a variety of installation options, a suction seal allowed for secure attachment to a wide range of bathroom surfaces while also being easy to reposition. Demanding minimal strength or tension on the hands compared to a variety of twist and squeeze clamps, which also have fewer places to be installed in the average bath. 


Rendering


Functional Prototype
Back to Top